Design 1A #2-09-938

Starting at $1,404
651 Sq. Ft. | 1 Bed | 1 Bath
Available May 23

Features

  • Kitchen and Bath

    • Appliances Stainless Steel
  • Home Attributes

    • Washer Dryer
    • Walk-In Closet
  • Premium Features

    • Balcony
  • 2D Diagram
  • 2D Diagram Furnished
  • 3D Tour
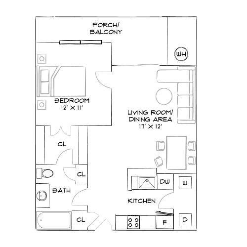
Haven 124 at Eastlake Station - Northglenn, CO - Diagram

Design 1A

This floor plan features a spacious living area connected to a kitchen, with a single bedroom and full bathroom located off a small hallway with multiple closets. A porch/balcony sits off the bedroom, and the layout includes designated spaces for a washer/dryer and standard kitchen appliances.

Haven 124 at Eastlake Station - Northglenn, CO - Diagram

Design 1A

This floor plan features a spacious living area connected to a kitchen, with a single bedroom and full bathroom located off a small hallway with multiple closets. A porch/balcony sits off the bedroom, and the layout includes designated spaces for a washer/dryer and standard kitchen appliances.

Design 1A

This floor plan features a spacious living area connected to a kitchen, with a single bedroom and full bathroom located off a small hallway with multiple closets. A porch/balcony sits off the bedroom, and the layout includes designated spaces for a washer/dryer and standard kitchen appliances.

*Apartment prices, availability and terms are subject to change without notice. Apartment photos and floor plans are for illustrative purposes only. Actual square footage, layout, and property or apartment features may vary.